서울역북부역세권 개발사업 공모전 응모작. 모도건축과 협업
연면적 약 28만 제곱미터 규모의 주거, 업무, 상업, 숙박, 문화, 컨벤션 용도 설계.
지하도, 지하터널, 도로, 철도, 고가도로 등으로 “고립”된 대지 안으로 주변 조직의 보행흐름을 연결하는 새로운 “망”을 형성하는 개념. 지하부터 지상까지 보행가로의 연결이 지속되도록 각 프로그램을 배치. 개별 프로그램의 기능 외 보행공간으로 연결될 건물의 공공성을 고려.
서울역북부역세권 개발사업 공모전 응모작. 모도건축과 협업
연면적 약 28만 제곱미터 규모의 주거, 업무, 상업, 숙박, 문화, 컨벤션 용도 설계.
지하도, 지하터널, 도로, 철도, 고가도로 등으로 “고립”된 대지 안으로 주변 조직의 보행흐름을 연결하는 새로운 “망”을 형성하는 개념. 지하부터 지상까지 보행가로의 연결이 지속되도록 각 프로그램을 배치. 개별 프로그램의 기능 외 보행공간으로 연결될 건물의 공공성을 고려.
경북 영천 산자락에 경마장 및 테마파크 설계 공모작.
두 산맥의 능선 위 경마코스를 배치, 절토량을 최소화하고 계곡 내 기존 숲 속에 공연, 승마시설을 배치.
경북 영천 산자락에 경마장 및 테마파크 설계 공모작.
두 산맥의 능선 위 경마코스를 배치, 절토량을 최소화하고 계곡 내 기존 숲 속에 공연, 승마시설을 배치.
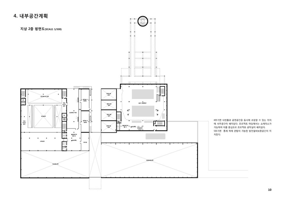
당인리 문화공간_1812
당인리 화력발전소 3, 4호기 문화공간 조성 공모안.
기존 철골프레임 안 보일러설비를 드러내며 비워지는 공간을 공연장상부로 재활용하고 그 주변과 상부공간에 한강조망이 가능한 서점, 식당 등을 배치. 3, 4호기 터빈홀을 상호 연결, 어울림마당로를 3, 4호기 사이로 연장, 홍대앞 문화인파가 문화발전소의 용매가 되도록 고안. 터빈홀 중심으로 공연, 전시, 공방, 교육, 답사 등 기능이 가변적으로 확장, 연결되도록 구상.
팀원; 이선홍, 윤승조, 최영한, 이건희

_%ED%8E%B8%EC%A7%91%EB%B3%B8_%ED%8E%B8%EC%A7%91%EB%B3%B8.png)












